WJ-3.5 Underground Diesel LoaderThe WJ-3.5 is a new compact and lightweight 3.5m³ (7 ton) capacity Load Haul Dump (LHD) for underground mining. It features the best-in-class performance, thanks to advanced powertrain tec···
Category: Underground Disel Loader
WJ-3.5 Underground Diesel Loader
The WJ-3.5 is a new compact and lightweight 3.5m³ (7 ton) capacity Load Haul Dump (LHD) for underground mining. It features the best-in-class performance, thanks to advanced powertrain technology, stronger boom for fast bucket filling and a payload capacity of seven tonnes.
Description
The WJ-3.5 is mainly developed for underground mining. It offers reduced dilution, better flexibility, and operator safety while working in development work, mining and tunnelling construction. Easy to operate and maintain, and it features an operator compartment that is located in the rear frame of the machine to ensure increased operator safety.
The WJ-3.5 ’s advanced powertrain technology features a proven transmission with good gear box ensuring fast ramp speeds to quickly clear tunnel headings. Powerful boom and bucket hydraulics enables the use of both lift and tilt functions simultaneously when penetrating to the muck pile, making one-pass bucket filling easy and contributing to high fill factors.
The WJ-3.5 is full of features to help mines maximize tonnes and minimize extraction costs. Engineered to optimize machine width, length and turning radius, enabling operation with less dilution and lower operational costs, it can be used for tunnel above size 3.4m X 3.4m.
Advantages
- Control System provides service information, system diagnostics and alarm log files on a touch screen for easy access.
- Ground-level daily maintenance enables safer servicing. For accessing the top of the unit, three point contact accessways from the cold side of the machine.
- Improved powertrain results in higher penetration rates and better loading efficiency
- Higher payloads boost productivity and reduce lifecycle costs
- Higher unloading height for bigger dump truck
- Close Cabin with air conditioner for comfortable operattion
Technical data
Capacity | |
Load Capacity | 7000kg |
Bucket Size | 3.5 m³ |
Breakout Force | 103kN |
Traction Force | 134kN |
Speed | 0~ 18.4 km/h |
Climing Ability(Laden) | 20° |
Dimension | |
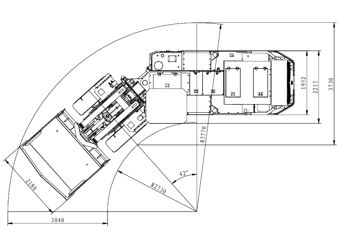
Tramming Size (LxWxH) | 9230*2215*2340mm |
Max Lift Height | 4750mm |
Max Unloading Height | 2050mm |
Ground Clearance | 340mm |
Inner Turning Radius | 2730mm |
Outer Turning Radius | 5770mm |
Weight | |
Operation Weight | 21000kg |
Laden Weight | 28000kg |
Front Axle (Empty) | 12600kg |
Rear Axle (Empty) | 8400kg |
Front Axle (Laden) | 19600kg |
Performance | |
Speed | 0~23.7km/h |
Boom Raising Time | ≤6.7s |
Boom Lowering Time | ≤5.2s |
Dumping Time | ≤2.7s |
Oscilation Angle | ±8° |
Engine | |
Engine | Volvo TAD850VE (Option Benz OM906LA) |
Engine Power | 160kw / 2300rpm |
Engine Type | Water-Cool & Turbocharge |
Cylinders | 6 In line |
Displacement | 7.7L |
Max Torque | 1060Nm |
Emission | EURO III / Tier 3 |
Transmission | |
Torque Converter | DANA C273 |
Gear Box | DANA RT32000 |
Axle | |
Front Axle | DANA 16D |
Rear Axle | DANA 16D |
Dimension Drawing


WJ-3.5 Photo

Solid as a rock, Way of succeed
ROCKWAY is a global high-tech mining equipment supplier in China, support mining houses and contractors worldwide with mainly mining equipment & spare parts, such as Drilling Rig, Tunneling Drilling Jumbo, Mining Drilling Jumbo, Bolting Jumbo, Mucking Loader Underground Loader, Underground Dump Truck, Utility Vehicle, Tunnel & Construction equipment, Crushing & screening equipment and etc.
ROCKWAY is mainly engaged in the design, development, production, installation and training of underground mine equipment and ore processing equipment, spare parts supply and sales with many years experience.
ROCKWAY strictly control the quality and have quality supervision and inspection personnel in all aspects of production. After the completion of the machine, ROCKWAY will also have specialized inspection personnel to conduct a full range of inspections on the machinery, including whether parts and components are in place and whether all the functions of the machinery are normal.
ROCKWAY has a strong, established footprint in China, Russia , Peru, Chile, Mexico, India, Indonesia, Zambia, Congo RC, and South Africa with focused expansion into South East Asia and South America, as well as North America. Rockway will ensure to provide customers the most cost-effective and high performance products.
| Email: rockwaymachinery@163.com | Phone: +8613793160992 |
| WhatsApp/Wechat: +8613793160992 | Address: No.12111 Jingshi Road,Lixia district, Jinan City, Shandong, China |
Get A Free Quote
x